2019/12/03
【希少物件・平成26年新築の築浅物件】小山市羽川一戸建て
売約済。ありがとうございました。
【希少物件 平成26年新築の築浅物件】
小山市羽川 一戸建て住宅
羽川小学校まで徒歩4分の好立地!
外観写真


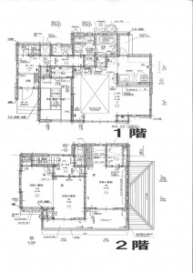
収納充実 間取り現在3LDK → 4LDKに変更可

室内写真
システムキッチン 広々リビング18.7帖

玄関 階段

ユニットバス トイレ2カ所完備

内見大歓迎♪お気軽にお問合せ下さい!
所在:小山市羽川
土地面積:241.67㎡(73.10坪)
建物面積:113.31㎡(34.27坪)
間取り:3LDK → 4LDKに変更可
価格 万円
土地権利:所有権
地目:宅地
都市計画:市街化区域
用途地域:第一種住居
建蔽率:60%
容積率:200%
築年月:平成26年10月
道路:北西角地 北6m・西6m・東4m 三方向道路
地整:平坦
設備:上水道・下水道・オール電化住宅
備考:
取引形態:専任媒介
おすすめポイント
平成26年新築の築浅物件!羽川小学校まで徒歩4分!
——————————————————————————————————
社名:おおひら不動産㈱ 行政書士田中事務所
住所:栃木市大平町西野田185-1
電話:0282-25-6860
メール:info@oohirafudousan.co.jp

